8003 16th St NW






































Listing Agent
daniel.brewer@compass.comP: (202)-277-9099
Property Details for 8003 16th Street Northwest
Property Details for 8003 16th Street Northwest
| Status | Coming Soon |
|---|---|
| Days on Market | - |
| Taxes | - |
| HOA Fees | - |
| Condo/Co-op Fees | - |
| Compass Type | Single Family |
| MLS Type | - |
| Year Built | - |
| Lot Size | - |
| County | District of Columbia |
Location
Payment Calculator
$7,195 per month
30 year fixed, 6.845% Interest
$6,523
$672
$0
Property Information for 8003 16th Street Northwest
- School District Name: District Of Columbia Public Schools (Washington DC)
- School District County ID: 121140357950
- Elementary School: SHEPHERD (WASHINGTON DC)
- High School: JACKSON-REED (WASHINGTON DC)
- Senior Community: No
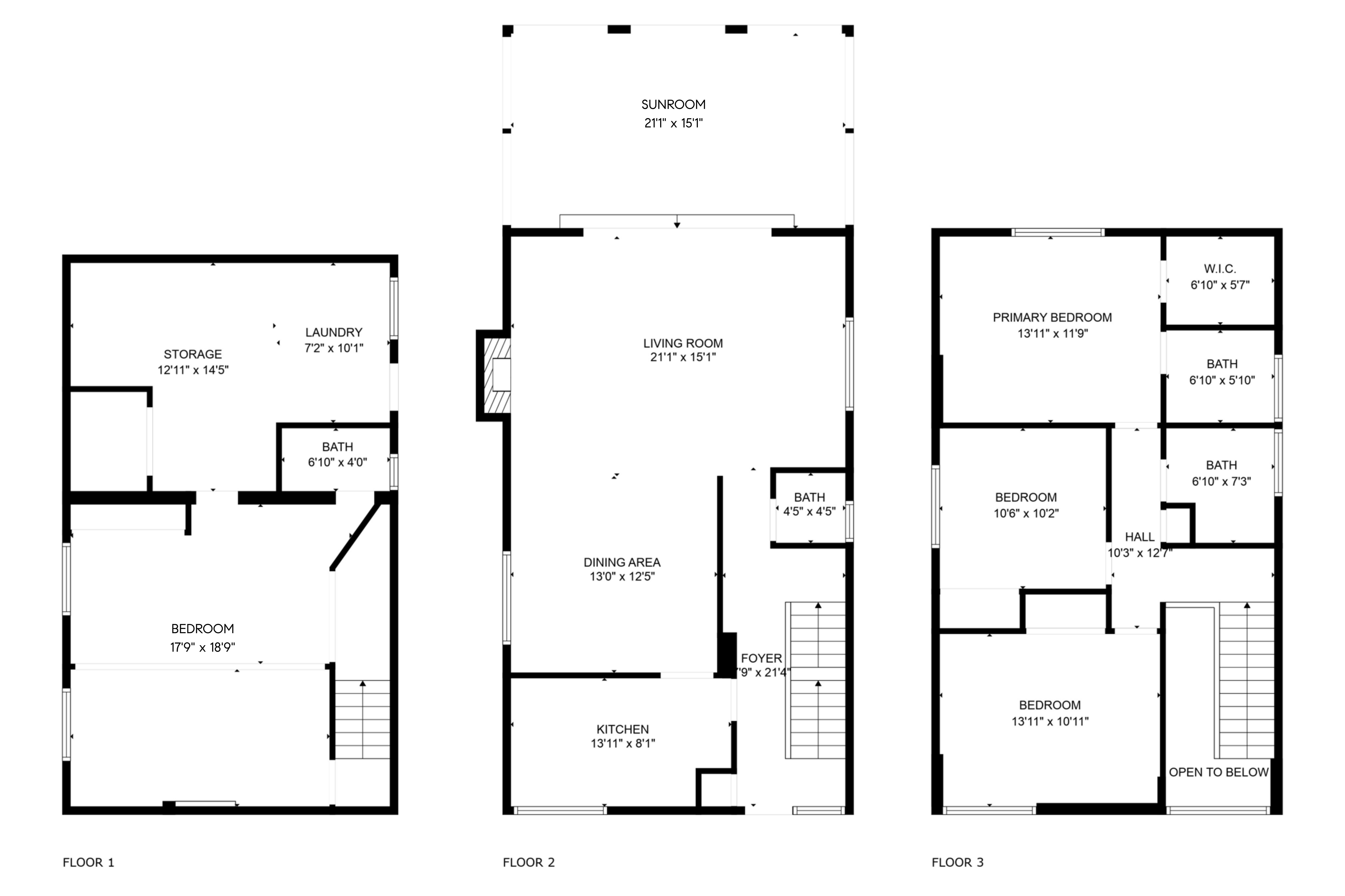
- # Bedrooms Count Main Level: 0
- # Bathrooms Full: 3
- # Bathrooms Half: 1
Property History for 8003 16th Street Northwest
| Date | Event & Source | Price | Appreciation |
|---|---|---|---|
| Jun 26, 2025 | Withdrawn BRIGHT #DCDC2195088 | — | |
| May 1, 2025 | Listed (Active) BRIGHT #DCDC2195088 | $1,245,000 | — |
| Apr 3, 2019 | Withdrawn BRIGHT #1008263006 | $849,900 | — |
| Aug 10, 2018 | Closed (Public Record) Public Record #630316317 | $936,000 | — |
| Aug 10, 2018 | Closed BRIGHT #1002067460 | $936,000 | — |
| Jul 24, 2018 | Pending BRIGHT #1002067460 | — | |
| Jul 19, 2018 | Listed (Active) BRIGHT #1002067460 | $849,900 | — |
| Nov 20, 2016 | Listed (Active) BRIGHT #1008263006 | $849,900 | — |
| Nov 17, 2016 | Withdrawn BRIGHT #1008246328 | $849,900 | — |
| Nov 17, 2016 | Withdrawn BRIGHT #1008246328 | — | |
| Sep 28, 2016 | Listed (Active) BRIGHT #1008246328 | $879,900 | — |
| May 28, 1998 | Closed BRIGHT #DCDC299068 | $195,000 | — |
| Apr 22, 1998 | Pending BRIGHT #DCDC299068 | — | |
| Nov 19, 1997 | Listed (Active) BRIGHT #DCDC299068 | $225,000 | — |
| Date | Event & Source | Price |
|---|---|---|
| 06/26/2025 | Withdrawn BRIGHT #DCDC2195088 | — |
| 05/01/2025 | Listed (Active) BRIGHT #DCDC2195088 | $1,245,000 |
| 04/03/2019 | Withdrawn BRIGHT #1008263006 | $849,900 |
| 08/10/2018 | Closed (Public Record) Public Record #630316317 | $936,000 |
| 08/10/2018 | Closed BRIGHT #1002067460 | $936,000 |
| 07/24/2018 | Pending BRIGHT #1002067460 | — |
| 07/19/2018 | Listed (Active) BRIGHT #1002067460 | $849,900 |
| 11/20/2016 | Listed (Active) BRIGHT #1008263006 | $849,900 |
| 11/17/2016 | Withdrawn BRIGHT #1008246328 | $849,900 |
| 11/17/2016 | Withdrawn BRIGHT #1008246328 | — |
| 09/28/2016 | Listed (Active) BRIGHT #1008246328 | $879,900 |
| 05/28/1998 | Closed BRIGHT #DCDC299068 | $195,000 |
| 04/22/1998 | Pending BRIGHT #DCDC299068 | — |
| 11/19/1997 | Listed (Active) BRIGHT #DCDC299068 | $225,000 |
For completeness, Compass often displays two records for one sale: the MLS record and the public record.
Public Records for 8003 16th Street Northwest
Schools near 8003 16th Street Northwest
Rating | School | Type | Grades | Distance |
|---|---|---|---|---|
| Public - | PK to 5 | |||
| Public - | 6 to 8 | |||
| Public - | 9 to 12 | |||
| Public - | PK to 5 |
Rating | School | Distance |
|---|---|---|
Shepherd Elementary School PublicPK to 5 | ||
Deal Middle School Public6 to 8 | ||
Jackson-Reed High School Public9 to 12 | ||
Dorothy I. Height Elementary School PublicPK to 5 |
School ratings and boundaries are provided by GreatSchools.org and Pitney Bowes. This information should only be used as a reference. Proximity or boundaries shown here are not a guarantee of enrollment. Please reach out to schools directly to verify all information and enrollment eligibility.
Neighborhood Map and Transit
Similar Homes
Similar Sold Homes
Homes for Sale near Shepherd Park
- Brightwood
- Chevy Chase DC
- Chillum DC
- Colonial Village DC
- Downtown Silver Spring
- Maryland
- Northeast Washington
- Northwest Washington
- Shepherd Park
- Takoma
- Walter Read Army Medical Center
- Rock Creek Forest
- 16th Street Heights
- Rock Creek Gardens Condominium
- Chillum
- Riggs Park
- Silverton Condominium
- Woodside
- Petworth
- Forest Hills
No guarantee, warranty or representation of any kind is made regarding the completeness or accuracy of descriptions or measurements (including square footage measurements and property condition), such should be independently verified, and Compass expressly disclaims any liability in connection therewith. Photos may be virtually staged or digitally enhanced and may not reflect actual property conditions. Offers of compensation are subject to change at the discretion of the seller. No financial or legal advice provided. Equal Housing Opportunity.
© 2025 Bright MLS. All rights reserved. All information is deemed reliable, but accuracy is not guaranteed. Listing information is from various brokers who participate in IDX and not all listings may be visible on the site. The property information being provided is for the consumer’s personal, non-commercial use and may not be used for any purpose other than to identify prospective properties consumers may be interested in purchasing. Data last updated on 06/30/2025 12:40 PM






































